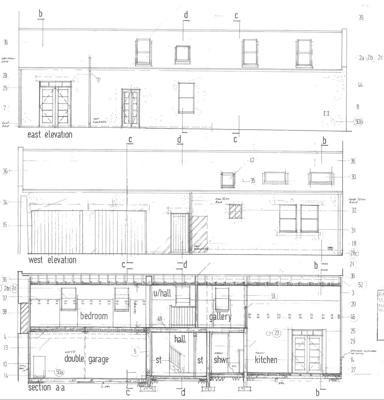
The Elevation Plans

 

The elevation plans show the east and west aspects of the extension.

Plan2.jpg (341220 bytes)

 


 
To view the ground floor plans
 
To see the latest pictures
 
To return to the Buxley Homepage